LUNA 23 (en colaboración con Carlos Orihuela García)
–Nombre: Luna 23
–Localidad: El Puerto de Santa María_Cádiz
–Fecha: octubre_2025
–Cliente: Privado
–Autor(es): Borja García Guillén, Carlos Orihuela García
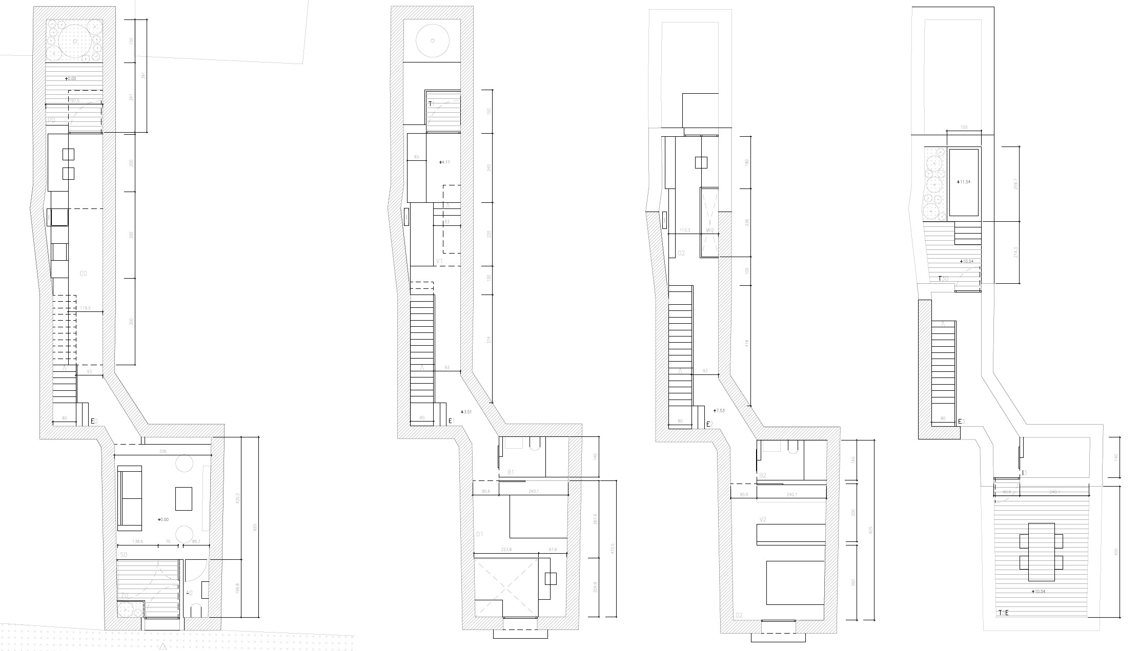
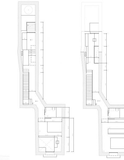
-Tipo de Proyecto: Rehabilitación de finca entre medianeras
El proyecto aborda la rehabilitación y ampliación de una vivienda tradicional entre medianeras, situada en el casco histórico de El Puerto de Santa María. La intervención propone reinterpretar la tipología existente desde una perspectiva contemporánea y bioclimática, respetando la fachada y los muros estructurales originales como testigos de la memoria constructiva del edificio.
La propuesta se fundamenta en los valores de la clienta: eficiencia arquitectónica, materiales naturales (arcillas, cales, barros) y una estética industrial honesta, donde las instalaciones quedan a la vista y las texturas imperfectas se convierten en parte de la expresión del espacio. La vivienda se concibe como un organismo continuo y versátil, con mínima compartimentación y dobles alturas que potencian la entrada de luz y la sensación de amplitud, dotando a cada espacio de cualidades escultóricas y fluidas.
El diseño equilibra creatividad y economía, priorizando soluciones constructivas sencillas y materiales coherentes con la filosofía del proyecto, logrando un hogar donde la autenticidad, la eficiencia y la armonía espacial se entrelazan para ofrecer una experiencia de habitar contemporánea, sensible al contexto histórico y comprometida con la sostenibilidad.